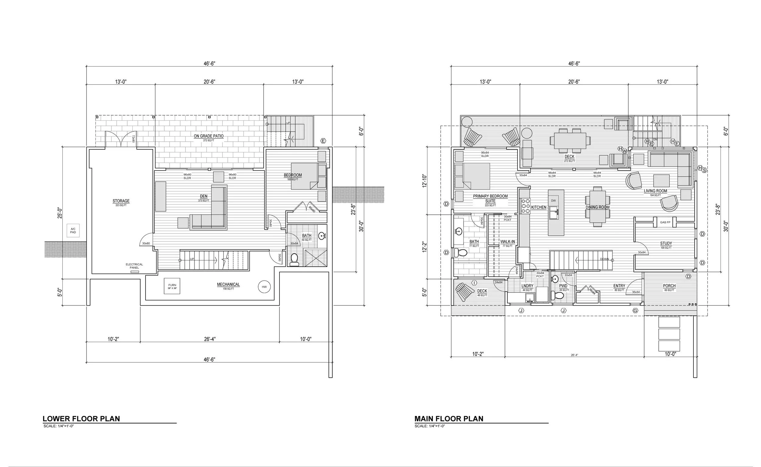
Colchester, VT

Dennett Residence

2025 (Under Construction)

Design development and construction documentation of a lakeside residence in Colchester, VT, in collaboration with JRMA. The two-story house sits on an existing footprint and features space for hosting family and therapy clients.