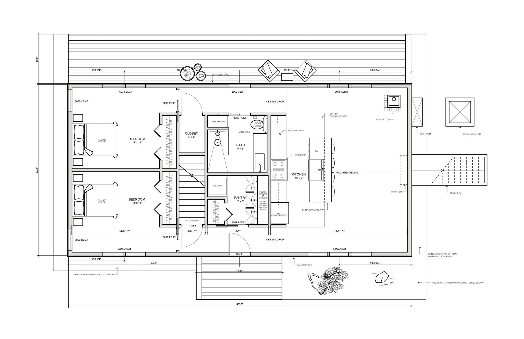
Cannon Residence

South Burlington, VT

2024

Two-bedroom residence in Song of the Morning Yoga Ranch, Vanderbilt, MI for a photographer and retired Yale potter and professor Jan Cannon.